Cải tạo nội thất nhà chung cư cũ
Căn hộ chung cư đã khá cũ kỹ, xuống cấp sau khi được cải tạo như được lột xác trở nên xinh đẹp, tiện nghi hơn. Mẫu cải tạo nhà chung cư chúng tôi muốn giời thiệu với quý vị ngày hôm nay là của một gia đình gồm 3 thành viên, vợ chồng và con trai sống trong căn hộ chung cư rộng 60m2 chỉ có một phòng ngủ, khá bí bách do không có cửa sổ.
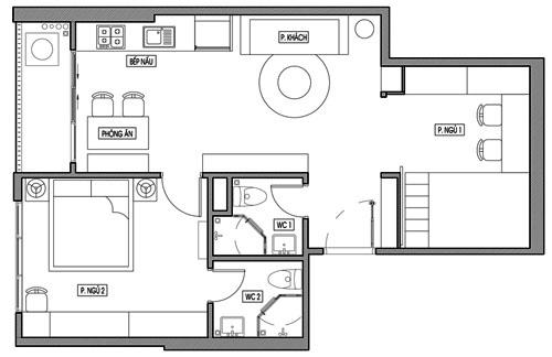
Bản vẽ hiện trạng mẫu cải tạo nhà chung cư cũ

Có thể thấy căn hộ bố trí có phần chưa hợp lý, thiếu sáng và không có thông gió. Vì vậy các KTS khuyên gia đình nên mở rộng cửa phòng để đón nắng và gió;; nên sử dụng tông màu sáng mang lại cảm giác rộng rãi, tươi vui;..

Phối cảnh thiết kế 3d cải tạo nhà chung cư cũ

Lối vào nhà mẫu cải tạo nhà chung cư cũ khá rộng rãi thông thoáng, có kệ trang trí mang lại nét rất riêng, ấn tượng đầu tiên khi bước chân vào nhà.

Do diện tích của căn hộ chung cư khá nhỏ nên giải pháp được lựa chọn là thiết kế phòng khách liền bếp giúp tiết kiệm diện tích. Tuy nhiên không gian giữa hai khu vực vẫn được tách biệt khá rõ nhờ vách ngăn bằng các thanh lam gỗ. Các đồ đạc thiết kế nhỏ gọn, sử dụng sofa chữ I, bàn trà tròn hay ti-vi treo tường cũng thể hiện sự xử lý thông minh khi tiến hành cải tạo nhà chung cư cũ

Sử dung trần thạch cao nên gia chủ có thể dễ dàng lắp đặt hệ thống đèn trần chìm chạy dọc phòng, kết hợp với cửa kính lớn đem lại sự sáng sủa, thông thoáng cho căn phòng.

Căn bếp nhỏ cũng sử dụng màu trắng chủ đạo mang đến cảm giác sạch sẽ, nhã nhặn. Tủ bếp tuy nhỏ nhưng cao chạm trần, vẫn đảm bảo công năng lưu trữ các đồ dùng cần thiết cho việc chế biến.

Căn phòng ngoài sắc trắng thuần khiết còn được điểm xuyết thêm các sắc màu tươi vị, nhấn nhá khác như vàng, xanh, nâu…

Phòng ngủ mẫu cải tạo nhà chung cư cũ vẫn khá đơn giản nhưng được sơn lại màu tường và lắp thêm mảng gỗ phía đầu giường cũng như lắp đặt thêm giá sách để căn phòng trông sáng sủa, tiện nghi hơn.

Tủ quần áo cạnh giá sách thiết kế kiểu tủ âm trông như một mảng tường trắng trong phòng; nhờ đó mà căn phòng không có cảm giác bị lấn chiếm bởi những đồ dùng diện tích quá lớn.

Cửa tủ thiết kế kiểu kéo trượt rất tiện lợi.

Phòng ngủ của cậu con trai đặt cạnh phòng khách, gần lối cửa vào được mở rộng thêm cửa nên dù không có cửa sổ vẫn rất thoáng. Giường ngủ thiết kế kiểu giường tầng để cho người con tương lai.

Bàn học khá dài nên cậu con trai có thể mời bạn về học chung; giá sách được sắp xếp vô cùng gọn gàng ngăn nắp.
Mẫu cải tạo nhà chung cư cũ quý vị trên đây hy vọng góp thêm vào “ý tưởng nhà đẹp” của mỗi người. Xây Dựng Nguyễn An chuyên dịch vụ thiết kế nhà, cải tạo nhà đẹp cam kết sẽ mang lại cho quý khách hàng những sản phẩm nhà ở đẹp nhất, hoàn mỹ nhất. Liên hệ ngay hôm nay để được chúng tôi tư vấn, chăm sóc tận tình.
CÔNG TY TNHH KIẾN TRÚC & XÂY DỰNG NGUYỄN AN
Trụ Sở Chính: 92 Cao Đức Lân , Phường An Phú , quận 2 Tp Thủ Đức, Việt Nam
Chi nhánh: 100 Đường Số 10 Cityland Center Hills, Gò Vấp, Thành phố Hồ Chí Minh, Việt Nam
Xưởng sản xuất: 62 Ngô Chí quốc , Phường Bình Chiểu , TP Thủ Đức, Thành phố Hồ Chí Minh
Email: xaydungsg86@gmail.com
CSKH : 0912.692.682 - 0933.222.363 (Zalo)
Website: http://xaydungnguyenan.com