Sửa nhà phố 2 tầng tại TP HCM
Hôm nay Xây Dựng Nguyễn An xin gửi tới quý vị bài viết cụ thể về sửa nhà phố 2 tầng để cung tham khảo cho các dự án sửa nhà của mình trong thời gian sắp tới.
1. Mặt tiền nhà phố 2 tầng trước và sau khi được sửa chữa cải tạo

Trước khi được sửa chữa, nhìn từ bên ngoài ngôi nhà phố 2 tầng trông tiêu điều xơ xác lọt thỏm so với ngôi nhà kề bên. Các mảng tường ẩm mốc, có dấu hiệu bong nứt gây mất thẩm mỹ. Phần ban công sử dụng trồng cây nhưng không được chăm sóc nên héo úa, ngổn ngang. Giải pháp của các KTS đưa ra là sửa dụng hệ cửa lam sắt đóng mở dễ dàng vừa thẩm mỹ vừa đảm bảo công năng thông gió mang lại sựa thoáng mát cho khu vực trong nhà. Phần ban công cắt bỏ cây thay bằng khung sắt chắc chắn, có ô thông sáng.
2. Thiết kế sửa chữa nhà ống 2 tầng
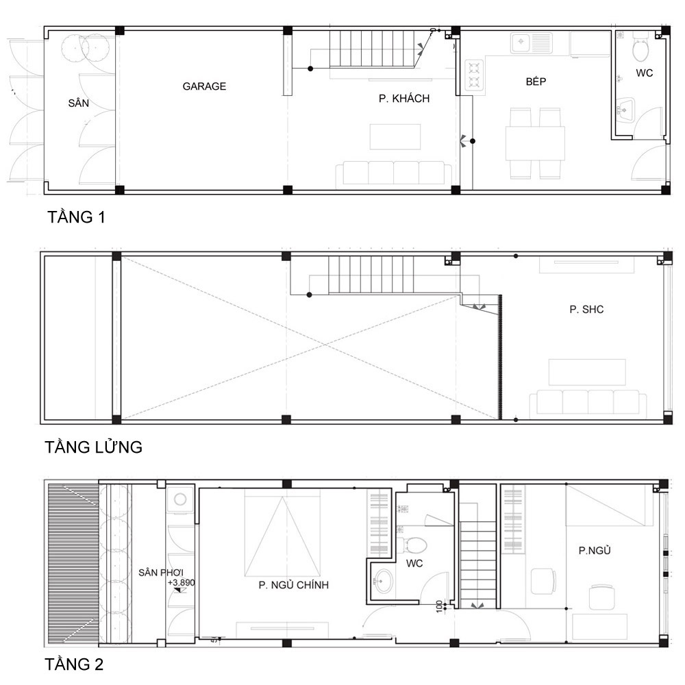
Về khu vưc bên trong ngôi nhà ống 2 tầng, các KTS đã tiến hành dựng bản vẽ mặt đứng để tìm ra hướng sửa chữa cải tạo. Khung nhà giữ nguyên, chỉ thay đổi hướng cầu thang từ chữ U thành chữ I, thầng lửng được chuyển ra sa cho hợp lý, thoáng mát.

thiết kế sửa chữa nhà phố 2 tầng

Mặt bằng thiết kế sửa chữa nhà ống 2 tầng
3. Hình ảnh nội thất nhà phố 2 tầng trước và sau khi sửa chữa

Trước khi sửa nhà cầu thang có hình chữ U chắn diện tích khiến chiều rộng vốn hạn chế lại càng như bị thu hẹp. Sau khi sửa, cầu thang được đặt sát tường chừa diện tích cho phòng khách thêm rộng rãi.

Cầu thang cũ chật hẹp các bậc thang gạch bắt bụi bẩn đã được thay thế bằng cầu thang mới rọng hơn, sạch sẽ và hiện đại hơn.

Phần gác lửng trên tầng hai có thêm thanh lam vừa duyên dáng lại vừa đảm bảo an toàn.
Đặt cạnh phòng khách là phòng bếp rộng rãi, sáng sửa với đầy đủ tiện nghi. Nhờ sự chênh lệch chiều cao mà không gian phòng bếp như tách biệt hoàn toàn với khu vực tiếp khách.

Hãy cùng xem hình ảnh phòng bếp của nhà phố 2 tầng trước và sau khi cải tạo quả thực là sự lột xác quá thành công. Nếu trước kia chỉ thấy sự tối tăm, chắp và thì giờ căn bếp sáng bừng và sạch sẽ như trong nhà hàng cao cấp.

Khoảng ban công cây cối xơ xác đã được thay bằng các chậu cây cảnh và dãy cây hoa xinh xắn tao thành nơi nghỉ ngơi xanh mướt, bình yên.

Phòng ngủ của con thoáng mát nhờ đặt cạnh cửa sổ và thiết kế thêm hai ô thông sáng.

Khu vực vệ sinh nhà phố 2 tầng sau khi sửa trở nên sạch sẽ, khác xa sơ với hình ảnh bản thỉu, tối tăm trước đó.
Những ngôi nhà gắn bó với gia đình là điều đáng trân trọng nhưng những gì đã cũ kỹ, xuống câp thì nên tân trang, làm đẹp để các thành viên có không gian sống hoàn hảo lý tưởng hơn. Hãy đến với Xây Dựng Nguyễn An –đơn vị cải tạo, sửa chữa nhà chuyên nghiệp để được cung cấp dịch vụ trọn gói từ A-Z với chất lượng tuyệt hảo, giá thành hợp lý.
CÔNG TY TNHH KIẾN TRÚC & XÂY DỰNG NGUYỄN AN
Trụ Sở Chính: 92 Cao Đức Lân , Phường An Phú , quận 2 Tp Thủ Đức, Việt Nam
Chi nhánh: 100 Đường Số 10 Cityland Center Hills, Gò Vấp, Thành phố Hồ Chí Minh, Việt Nam
Xưởng sản xuất: 62 Ngô Chí quốc , Phường Bình Chiểu , TP Thủ Đức, Thành phố Hồ Chí Minh
Email: xaydungsg86@gmail.com
CSKH : 0912.692.682 - 0933.222.363 (Zalo)
Website: http://xaydungnguyenan.com